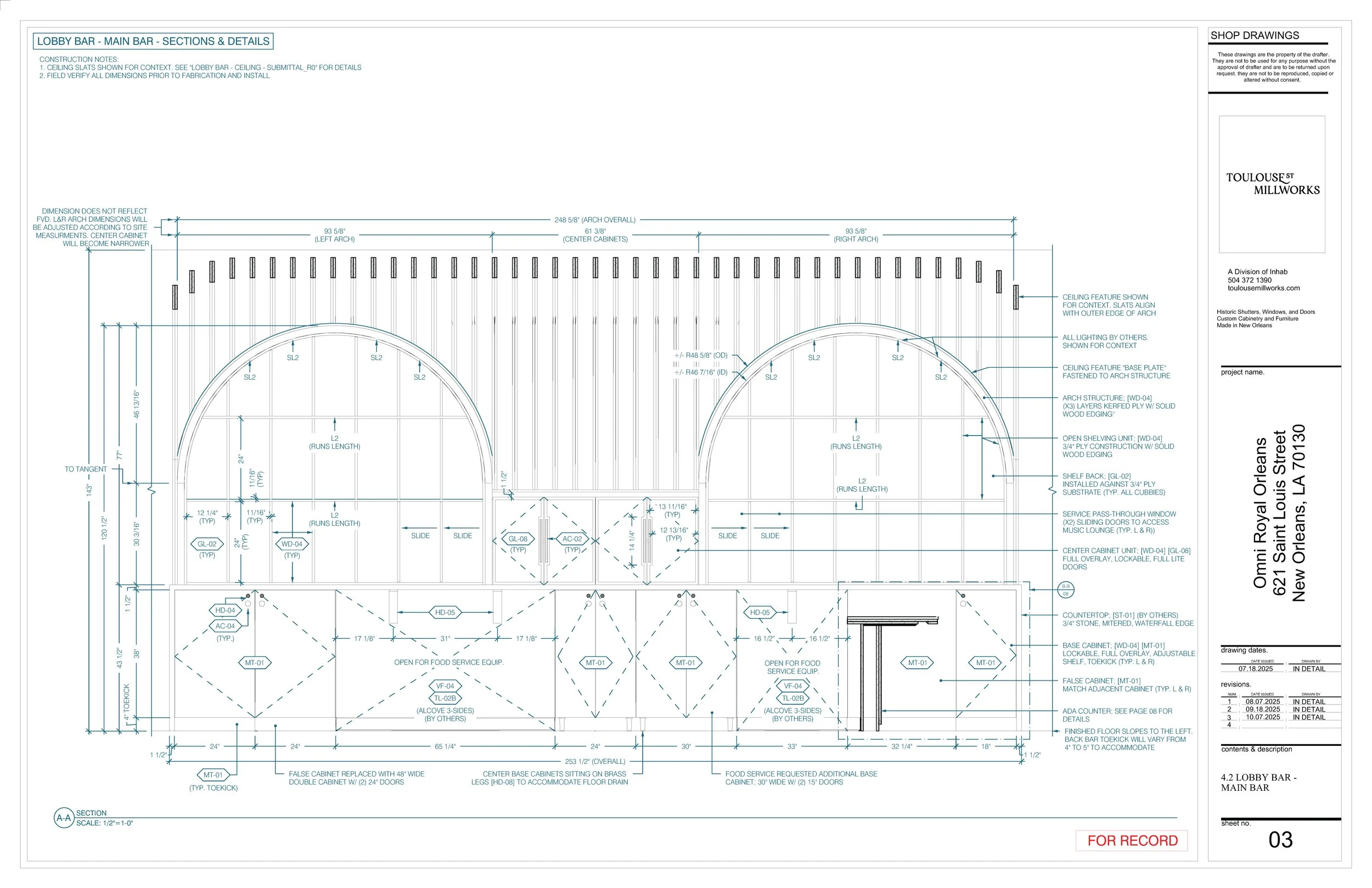
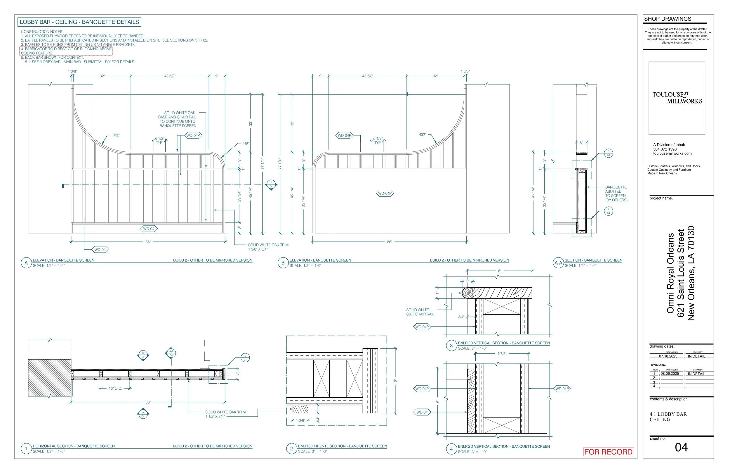
OMNI ROYAL ORLEANS HOTEL

CLIENT
Toulouse St. Millworks

PROJECT TEAM
GC: Ryan Gootee General Contractors
DESIGN: FAROUKI FAROUKI

PROJECT TYPE
Hospitality

LOCATION
New Orleans, LA

SIZE
10,000 SF

OUR SCOPE OF SERVICES
Millwork Detailing, Shop Drawings, & Project Management

Located in New Orleans’ French Quarter, the renovation of the Omni Royal Orleans Hotel was beautifully designed by FAROUKI FAROUKI and will provide a thoughtful upgrade to the public and private spaces across multiple floors. Finishes include natural White Oak, patinated Brass, and natural Walnut. These selections work in harmony with the architectural woodwork and help emphasize the story of this historic hotel.

We teamed-up with Toulouse St. Millworks assisting with project management, architectural detailing, and shop drawings. Additionally, we used interior 3D scanning and augmented reality walkthroughs with our digital modeling to assist with overall project coordination alongside the general contractor and other trades.